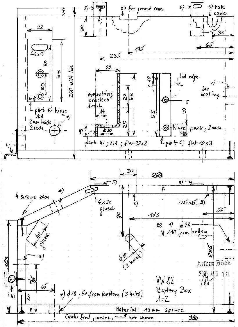
Back PagePLAN DU COFFRE DE BATTERIE DE LA KÜBELWAGEN Typ 82



J'ai reçu ce plan et cette photo de Arthur Boeck; Dès que j'ai le temps, je mettrai le plan au propre ;-).










Back Page R.Olgiati 01/09/2001